Na Zakolu Wisły |56 m2 | 3 pokoje TARAS GARAŻ

Kraków, Grzegórzki, Dąbie, Na Zakolu Wisły

865 000 PLN

Numer oferty4722
Typ transakcjiSprzedaż
Cena865 000 PLN
Powierzchnia56.3 m2
Cena za m215 364,12 PLN / m2
Liczba pokoi3
Piętro3/7
Rok budowy2016
Stan lokalubardzo dobry
Standard wykończeniabardzo dobry
Typ budynkuapartamentowiec
Rynekwtórny
Forma własnościwłasność
Głośnośćciche
Kuchniaaneks
Podłogapanele
Parkingmiejsce postojowe
Ogrzewaniemiejskie
Typ Balkonutaras
Ogrzewaniemiejskie
Na Zakolu Wisły |56 m2 | 3 pokoje TARAS GARAŻ (Kraków, Grzegórzki, Dąbie, Na Zakolu Wisły)

Na sprzedaż mieszkanie 3 pokojowe położone przy ul. Na Zakolu Wisły (Nowohucka, Saska) w rejonie Dąbia/Podgórza zaledwie 7 min. samochodem do ronda Grzegórzeckiego.

W pobliżu znajduje się Port Płaszów, a dalej tereny zielone ciągnące się przez całe zakole Wisły. Jest tu dużo terenu do spacerowania, czy biegania. Zakupy najwygodniej zrobisz w M1 (Auchan), na Dąbiu (Biedronka), bądź Płaszowie przy ul. Koszykarskiej (Lewiatan). Tutaj też znajduje się Szkoła Podstawowa nr 47.
Bezpośrednio na osiedlu mieści się m.in. klinika Vistula Clinic, oraz Publiczne Przedszkole Hop Kids.

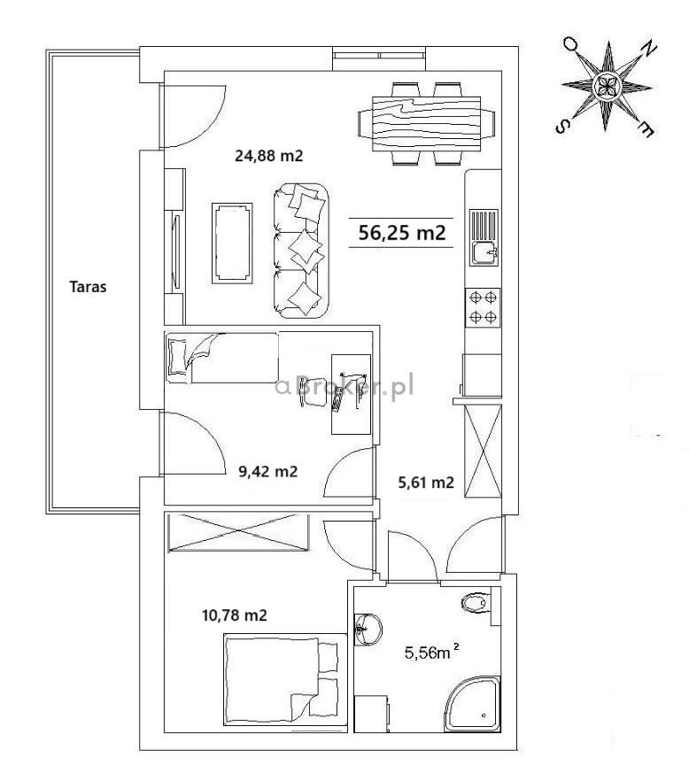
Oferowane mieszkanie ma powierzchnię całkowitą 56,3 m2, na którą składają się następujące pomieszczenia:

- Salon z aneksem kuchennym z wyjściem na duży balkon. Zabudowa meblowa na wymiar, pełne wyposażenie: piekarnik, zmywarka, płyta indukcyjna, lodówka.
- Sypialnia - mieści wygodne, duże łóżko 160x200 oraz przestronną szafę,
- Drugi pokój - również z wyjściem na balkon, obecnie zaaranżowany jako gabinet do pracy,
- Łazienka w uniwersalnej glazurze, z wanną ze szklanym parawanem i miejscem do przechowywania,
- Przedpokój - duża, zabudowana szafa na odzież wierzchnią.

Słowa klucze to:
- Staranne i nowoczesne wykończenie, bardzo dobrej jakości materiałami,
- Duże, bardzo wygodne miejsce w garażu podziemnym - ponad 18 m2,
- 3/7 piętro,
- Cichobieżna winda,
- Nowoczesne budownictwo,
- Tereny zielone.

Do mieszkania przynależy szerokie i długie miejsce w garażu podziemnym. W razie potrzeby swobodnie pomieści garażowego boxa (np. Magic Box) spełniając funkcję przechowywania.

CENA:
888 000 PLN + 70 000 PLN miejsce postojowe (ponad 18 m2!).

Zapraszam na prezentację. Warto zobaczyć tą nieruchomość.

Więcej informacji:
Maciej Korzeniowski, tel. 510 059 177
Biuro Nieruchomości aBroker. pl

-------------------
#NaZakoluWisły #Saska #bagry #spacery #blisko tereny zielone #podgórze #dąbie #płaszów #trzypokojowe #trzypokoje #miejsce postojowe #blisko A4 #garaż podziemny #autobus #komunikacja miejska #rondo grzegórzeckie #budownictwopo2010 #nowa technologia #balkon #taras #nowebudownictwo #mieszkaniedwustronne


Biuro Nieruchomości aBroker. pl

Treść niniejszego ogłoszenia nie stanowi oferty handlowej w rozumieniu Kodeksu Cywilnego.
Informacje
Domofon Winda
Kraków, Grzegórzki, Dąbie, Na Zakolu Wisły
Plany

Kontakt